Dorozsmai felújított lakás

79.900.000Ft
Eladó
8031 Ingatlan azonosító (ID)
106 m2 Méret
2 Szoba
1 Fürdőszoba

Leírás

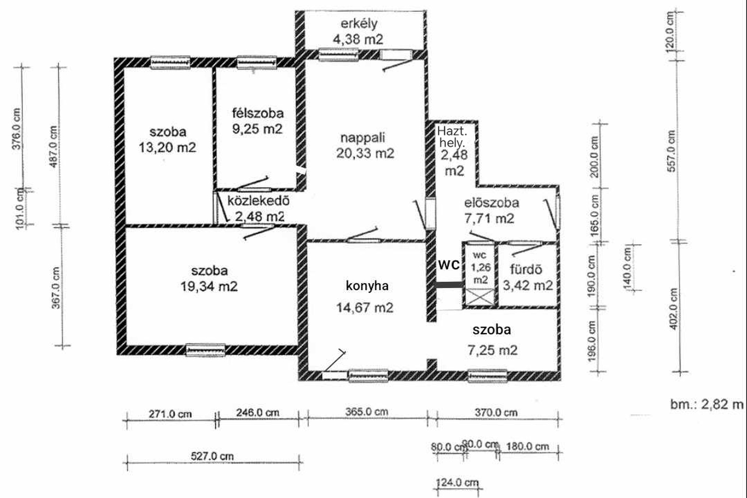
Szeged-Dorozsma, Barátság utcában, 106 nm-es, 3+2 szobás, teljes körűen, igényesen felújított, földszinti téglalakás eladó. A háznál igény esetén 18 nm-es garázs vásárlási lehetőség is van, ezen kívül az udvarban is lehet parkolni. Főbb jellemzők:
-2023-ban történt a felújítás
-még garanciás kondenzációs kazán
-hőszigetelt, 3 rétegű ablakok, szúnyoghálók, redőnyök
-több ponton záródó, új bejárai ajtó
-új burkolatok
-glettelt, festett falak
-új villanyhálózat
-5 db hűtő-fűtő klíma (majd minden helyiségben)
A lakás jó elosztású: 5 külön bejáratú szoba, erkély, külön háztartási helyiség, étkező konyha – kijárattal a kertbe, ahol saját kertész van. Napfényes, kelet-nyugat tájolású. Az ingatlan alacsony rezsiköltségű: a gázszámla havi elosztással 10.000 Ft (főzőgáz és meleg vízzel együtt), közös költség 15.000 Ft. A 8 lakásos, rendezett társasház lépcsőházának összes nyílászárója is új, műanyagra cserélt. Saját tároló tartozik a lakáshoz. A zöld, csendes környezetben a szomszédságban megtalálható buszmegálló, boltok, iskola, óvoda.

Cím

Megnyitás a Google Térképen

Ismertetés

  • Ingatlan azonosító (ID) 8031
  • Ár 79.900.000Ft
  • Ingatlan típusa ,
  • Ingatlankínálat típusa
  • Szoba 3
  • Félszoba 2
  • Fürdőszoba 1
  • Méret 106 m2
  • Emelet földszint

Útvonaltervezés

Közeli helyek

Kapcsolat

Vass Sándor

Ingatlanügynök

+36 30 683 84 23
Egyéb ingatlan
Név megadása.
Telefonszám megadása.
Please enter your valid Email!
Ide írjuk az üzenetet.