Kisteleki sorház

42Ft
Eladó
8147 Ingatlan azonosító (ID)
55 m2 Méret
1 Fürdőszoba

Leírás

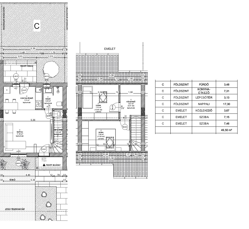
Kistelek központi részén, 2026-ban teljeskörűen felújított (jelenleg is tart), bruttó 55nm/51nm-es, kétszintes, téglából épült, nappali+2 szobás, egyedi gáz cirkó padló fűtéses, sorház kedvező áron eladó.
A ház felúítása minőségi anyagokból történik, fűtésrendszer teljesen új kerül beszerelésre. Az alacsonyabb rezsi érdekében 15cm-es külső hőszigeteléssel, nemesvakoltan kerül áltadásra. Konyhabútor az árban.
A házhoz tartozik egye zárt kb. 35nm-es saját kertrész, és egy kavicsos autóbeálló.

Cím

Megnyitás a Google Térképen

Ismertetés

  • Ingatlan azonosító (ID) 8147
  • Ár 42Ft
  • Ingatlan típusa
  • Ingatlankínálat típusa
  • Szoba 3
  • Fürdőszoba 1
  • Méret 55 m2
  • Telekméret 70 m2
  • Emelet nincs adat

Útvonaltervezés

Közeli helyek

Kapcsolat

Vass Sándor

Ingatlanügynök

+36 30 683 84 23
Egyéb ingatlan
Név megadása.
Telefonszám megadása.
Please enter your valid Email!
Ide írjuk az üzenetet.